Completed
Offers over £220,000

3 bed detached house for sale in Bressay Grove, Cambuslang, Glasgow, G72 8QU (ref: 953189)

Shortlist

Key features

  • Immediate Entry Available
  • Doubled Glazing
  • Gas Central Heating
  • Enclosed Gardens
  • Garage
  • Detached, 3 Bedroomd

Video

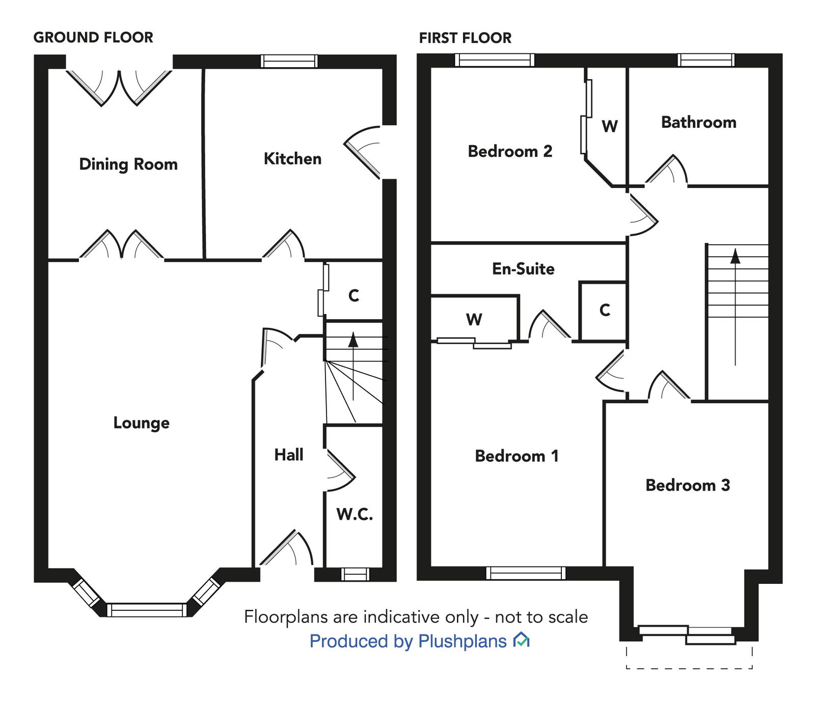
Deborah Johnson Properties are delighted to offer to the market this attractive and very well presented modern detached villa within the popular Lomond View development in Cambuslang. The property offers accommodation ideal for the family buyer over two levels comprising reception hallway, bay windowed lounge, separate dining room, fitted kitchen with oven and hob and downstairs cloakroom/wc The upper level accommodation provides access to each of the three bedrooms (master with en-suite shower room) and family bathroom with three piece suite. In addition the property has gas central heating, double glazing, single garage and attractive garden grounds to the front and rear. A lovely property with viewing strongly recommended.

Lounge 17 x 14

Dining Room 9.9 x 8.2

Kitchen 10  x 8.8

Downstairs Wc 5 x 2.8

Master Bedroom 8.6 x 9.7 En-Suite 9.7 x 5.

Double Bedroom 10 x 9

Single Bedroom 8.5 x 10.8

Family Bathroom

Garage18.5 x 10.5


Land and buildings transaction tax

Based on a sale price of £220,000 the total amount of land and buildings transaction tax payable will be:

*

Last updated: The calculator has been updated to reflect changes in land and buildings transaction tax from 5th December 2024.

* This value is based on the standard rate and not applicable to first-time buyers or buy-to-let / second home buyers.

Further details

  • Status: Completed
  • Reference: 953189

Location