Completed
Offers over £280,000

4 bed detached house for sale in Convent Road, Barrhead, Glasgow, G78 2FD (ref: 1113804)

Shortlist

Key features

  • Sought after location
  • Double glazing
  • Gas central heating
  • Two car driveway
  • Large, enclosed gardens
  • Four double bedrooms
  • Immediate entry available

Video

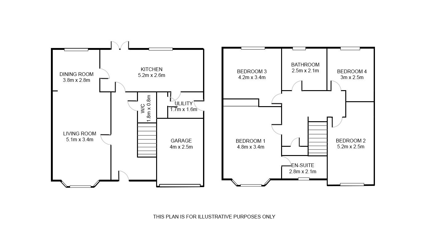
Deborah Johnson properties are thrilled to welcome to the market this four bedroom, detached villa within a peaceful Barrhead location rarely available to the market.  A superb, family home formed across two levels, early viewing is recommended.

The accommodation on offer comprises reception hallway, spacious lounge, dining room, fitted kitchen, utility room and  downstairs cloaks/wc.  The upper level has four good sized double bedrooms (master with en suite) and family bathroom. The property features gas central heating, double glazing and large, south gardens to the rear and a driveway leading to an integral garage.  A broad monoblock driveway provides parking for several vehicles, a side gate accesses the enclosed, child and animal friendly rear garden.

As well as peaceful, the situation is one of convenience, for a range of amenities available along the nearby Main Street including shops, restaurants, banks, post office and Barrhead Sport Centre. The area is synonymous for its calibre of schooling at all levels, the local train station provides a frequent service to Glasgow and further afield and there are nearby links to the major motorways.

PLEASE NOTE - This property will be Sold As Seen, no guarantees or warranties will provided by the seller.


Land and buildings transaction tax

Based on a sale price of £280,000 the total amount of land and buildings transaction tax payable will be:

*

Last updated: The calculator has been updated to reflect changes in land and buildings transaction tax from 5th December 2024.

* This value is based on the standard rate and not applicable to first-time buyers or buy-to-let / second home buyers.

Further details

  • Status: Completed
  • Council tax band: F
  • Parking spaces: Driveway
  • Reference: 1113804

Location